Met een eigen account kun je panden volgen, opslaan als favoriet, je zoekprofiel opslaan en jouw eigen notities bij een huis maken.
Algemeen
INTERESSE KENBAAR MAKEN PER MAIL - PLEASE SHOW INTEREST VIA MAIL | INFO@AMSTELLANDMAKELAARS.NL
Te huur aangeboden in Amsterdam West (Helmersbuurt):
Sfeervol en gemeubileerd 3-kamer appartement met riant dakterras in het hart van de geliefde Helmersbuurt in Amsterdam West, op slechts enkele minuten lopen van het Vondelpark, bieden wij dit heerlijke en volledig gemeubileerde 3-kamer apparte... Meer informatie
Te huur aangeboden in Amsterdam West (Helmersbuurt):
Sfeervol en gemeubileerd 3-kamer appartement met riant dakterras in het hart van de geliefde Helmersbuurt in Amsterdam West, op slechts enkele minuten lopen van het Vondelpark, bieden wij dit heerlijke en volledig gemeubileerde 3-kamer apparte... Meer informatie
| Kenmerken | |
|---|---|
| Alle kenmerken | |
| Type object | Appartement, bovenwoning |
| Bouwperiode | 1905 |
| Status | Verhuurd |
| Aangeboden sinds | Dinsdag 4 november 2025 |
Kenmerken
| Overdracht | |
|---|---|
| Referentienummer | 02886 |
| Huurprijs | € 2.500,- per maand (incl. servicekosten, gemeubileerd, gestoffeerd, geïndexeerd) |
| Borg | € 5.000,- |
| Inrichting | Ja |
| Inrichting | Gemeubileerd |
| Status | Verhuurd |
| Aanvaarding | In overleg |
| Aangeboden sinds | Dinsdag 4 november 2025 |
| Laatste wijziging | Woensdag 19 november 2025 |
| Bouw | |
|---|---|
| Type object | Appartement, bovenwoning |
| Woonlaag | 1e woonlaag |
| Soort bouw | Bestaande bouw |
| Bouwperiode | 1905 |
| Dakbedekking | Bitumen |
| Type dak | Platdak |
| Keurmerken | Energie prestatie advies |
| Isolatievormen | Dubbel glas Volledig geïsoleerd |
| Oppervlaktes en inhoud | |
|---|---|
| Woonoppervlakte | 50 m² |
| Inhoud | 155 m³ |
| Oppervlakte gebouwgebonden buitenruimte | 25 m² |
| Indeling | |
|---|---|
| Aantal bouwlagen | 1 |
| Aantal kamers | 3 (waarvan 2 slaapkamers) |
| Aantal badkamers | 1 |
| Locatie | |
|---|---|
| Ligging | Aan rustige weg Dichtbij openbaar vervoer Nabij school Nabij snelweg |
| Tuin | |
|---|---|
| Type | Zonneterras |
| Staat | Prachtig aangelegd |
| Energieverbruik | |
|---|---|
| Energielabel | A |
| CV ketel | |
|---|---|
| CV ketel | CV Ketel HR |
| Warmtebron | Gas |
| Combiketel | Ja |
| Eigendom | Eigendom |
| Uitrusting | |
|---|---|
| Warm water | CV-ketel |
| Verwarmingssysteem | Centrale verwarming |
| Ventilatie methode | Mechanische ventilatie |
| Badkamervoorzieningen | Douche Ligbad Toilet Wastafel |
| Heeft kabel-tv | Ja |
| Tuin aanwezig | Ja |
| Heeft een open portiek | Ja |
| Heeft ventilatie | Ja |
| Kadastrale gegevens | |
|---|---|
| Kadastrale aanduiding | Amsterdam T 6548 |
| Omvang | Appartementsrecht of complex |
| Eigendomsituatie | Eigen grond |
Beschrijving
INTERESSE KENBAAR MAKEN PER MAIL - PLEASE SHOW INTEREST VIA MAIL | INFO@AMSTELLANDMAKELAARS.NL
Te huur aangeboden in Amsterdam West (Helmersbuurt):
Sfeervol en gemeubileerd 3-kamer appartement met riant dakterras in het hart van de geliefde Helmersbuurt in Amsterdam West, op slechts enkele minuten lopen van het Vondelpark, bieden wij dit heerlijke en volledig gemeubileerde 3-kamer appartement aan. De woning is gelegen op de eerste verdieping en beschikt over een prachtig dakterras van circa 25 m², waar u in alle rust kunt genieten van de zon en het uitzicht over de stad.
OMGEVING:
De Kanaalstraat ligt in één van de meest gewilde buurten van Amsterdam: Oud-West. De wijk kenmerkt zich door haar charmante straten, levendige sfeer en de uitstekende voorzieningen in de directe omgeving.
Voor de dagelijkse boodschappen zijn de Jan Pieter Heijestraat, Kinkerstraat en de Ten Katemarkt op loopafstand, net als talloze gezellige cafés, restaurants en boetieks.
Het Vondelpark bevindt zich letterlijk om de hoek – ideaal voor een wandeling, een picknick of een sportieve ochtendrun. Met de fiets bent u binnen vijf minuten in het centrum van Amsterdam, en ook het openbaar vervoer is uitstekend geregeld met diverse tram- en buslijnen in de buurt.
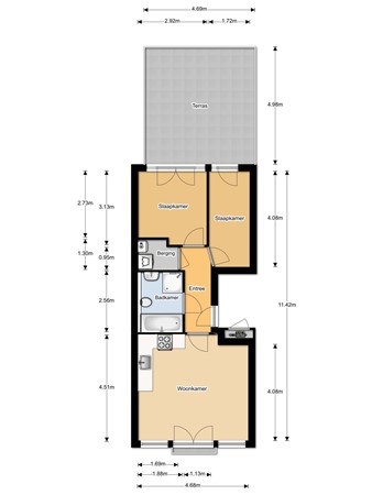
GLOBALE INDELING:
Via het keurig onderhouden trappenhuis bereikt u de woning op de eerste verdieping. De centrale hal biedt toegang tot alle vertrekken.
Aan de voorzijde bevindt zich de lichte woonkamer met een Frans balkon, waar grote ramen zorgen voor veel natuurlijke lichtinval. De open keuken is modern en voorzien van diverse inbouwapparatuur, waaronder een vaatwasser, combi oven, kookplaat en koel-vriescombinatie.
Aan de achterzijde ligt de ruime hoofdslaapkamer met toegang tot het heerlijke dakterras van circa 25 m². Daarnaast is er een tweede (slaap)kamer die ideaal is als logeerkamer of thuiskantoor.
De badkamer is netjes afgewerkt en beschikt over een ligbad, inloopdouche, wastafelmeubel, toilet en radiator.
Verder is er een handige bergkast met wasmachine aanwezig.
De woning is voorzien van een lamelparketvloer en tijdens de renovatie zijn diverse authentieke stijlkenmerken behouden gebleven, wat bijdraagt aan de warme en karaktervolle uitstraling van het appartement.
BIJZONDERHEDEN:
- Woonoppervlakte: ca. 50 m²
- Volledig gemeubileerd
- Energielabel A
- Frans balkon aan de voorzijde
- Riant dakterras van circa 25 m² aan de achterzijde
- Beschikbaar per: 1 december 2025 (of eerder in overleg)
- Huurperiode: minimaal 12 maanden (huurovereenkomst model A)
- Waarborgsom: 2 maanden huur
- Niet geschikt voor woningdelers
- Gelegen op toplocatie in de Helmersbuurt, nabij het Vondelpark
Voor meer informatie of het inplannen van een bezichtiging kunt u contact opnemen met ons kantoor.
Onze medewerkers staan u graag te woord.
Deze woning wordt aangeboden conform art 7:17 lid 6 Burgerlijk Wetboek. De opgegeven kenmerken en/of informatie is door ons met de nodige zorgvuldigheid samengesteld. Onzerzijds wordt echter geen enkele aansprakelijkheid aanvaard voor enige onvolledigheid, onjuistheid of anderszins, dan wel de gevolgen daarvan. Alle opgegeven maten en oppervlakten zijn slechts indicatief. De opgegeven kenmerken zijn slechts als aanduiding bedoeld.
Te huur aangeboden in Amsterdam West (Helmersbuurt):
Sfeervol en gemeubileerd 3-kamer appartement met riant dakterras in het hart van de geliefde Helmersbuurt in Amsterdam West, op slechts enkele minuten lopen van het Vondelpark, bieden wij dit heerlijke en volledig gemeubileerde 3-kamer appartement aan. De woning is gelegen op de eerste verdieping en beschikt over een prachtig dakterras van circa 25 m², waar u in alle rust kunt genieten van de zon en het uitzicht over de stad.
OMGEVING:
De Kanaalstraat ligt in één van de meest gewilde buurten van Amsterdam: Oud-West. De wijk kenmerkt zich door haar charmante straten, levendige sfeer en de uitstekende voorzieningen in de directe omgeving.
Voor de dagelijkse boodschappen zijn de Jan Pieter Heijestraat, Kinkerstraat en de Ten Katemarkt op loopafstand, net als talloze gezellige cafés, restaurants en boetieks.
Het Vondelpark bevindt zich letterlijk om de hoek – ideaal voor een wandeling, een picknick of een sportieve ochtendrun. Met de fiets bent u binnen vijf minuten in het centrum van Amsterdam, en ook het openbaar vervoer is uitstekend geregeld met diverse tram- en buslijnen in de buurt.
GLOBALE INDELING:
Via het keurig onderhouden trappenhuis bereikt u de woning op de eerste verdieping. De centrale hal biedt toegang tot alle vertrekken.
Aan de voorzijde bevindt zich de lichte woonkamer met een Frans balkon, waar grote ramen zorgen voor veel natuurlijke lichtinval. De open keuken is modern en voorzien van diverse inbouwapparatuur, waaronder een vaatwasser, combi oven, kookplaat en koel-vriescombinatie.
Aan de achterzijde ligt de ruime hoofdslaapkamer met toegang tot het heerlijke dakterras van circa 25 m². Daarnaast is er een tweede (slaap)kamer die ideaal is als logeerkamer of thuiskantoor.
De badkamer is netjes afgewerkt en beschikt over een ligbad, inloopdouche, wastafelmeubel, toilet en radiator.
Verder is er een handige bergkast met wasmachine aanwezig.
De woning is voorzien van een lamelparketvloer en tijdens de renovatie zijn diverse authentieke stijlkenmerken behouden gebleven, wat bijdraagt aan de warme en karaktervolle uitstraling van het appartement.
BIJZONDERHEDEN:
- Woonoppervlakte: ca. 50 m²
- Volledig gemeubileerd
- Energielabel A
- Frans balkon aan de voorzijde
- Riant dakterras van circa 25 m² aan de achterzijde
- Beschikbaar per: 1 december 2025 (of eerder in overleg)
- Huurperiode: minimaal 12 maanden (huurovereenkomst model A)
- Waarborgsom: 2 maanden huur
- Niet geschikt voor woningdelers
- Gelegen op toplocatie in de Helmersbuurt, nabij het Vondelpark
Voor meer informatie of het inplannen van een bezichtiging kunt u contact opnemen met ons kantoor.
Onze medewerkers staan u graag te woord.
Deze woning wordt aangeboden conform art 7:17 lid 6 Burgerlijk Wetboek. De opgegeven kenmerken en/of informatie is door ons met de nodige zorgvuldigheid samengesteld. Onzerzijds wordt echter geen enkele aansprakelijkheid aanvaard voor enige onvolledigheid, onjuistheid of anderszins, dan wel de gevolgen daarvan. Alle opgegeven maten en oppervlakten zijn slechts indicatief. De opgegeven kenmerken zijn slechts als aanduiding bedoeld.