Beschrijving
Te koop aangeboden in Amsterdam West:
Leuk en sfeervol 2/3-kamerappartement (ca. 52 m2) gesitueerd in een goed onderhouden pand aan de rustige Kijkduinstraat. De woning is gelegen nabij het Westerpark en station Sloterdijk en de gezellige winkels aan de Bos en Lommerweg. Het appartement is voorzien van een ruime slaapkamer aan de achterzijde, een zolderkamer én een heerlijk balkon gelegen op het Westen!
OMGEVING:
Het appartement is ideaal gelegen in de bruisende en hippe Bos en Lommer, nabij het Mercatorplein en de Jan Evertsenstraat met tal van leuke winkels en populaire horecagelegenheden. Zowel het fijne Westerpark als het Erasmuspark bevinden zich in de directe nabijheid en er zijn diverse recreatievoorzieningen nabij zoals sportscholen en een zwembad. om de hoek treft u meerdere supermarkten, winkels en eethuisjes.
Zeer goed bereikbaar met auto (A2, A4, A5 en A9) (2 minuten vanaf Ring West, afrit 4/5) en openbaar vervoer: bussen 15 (Sloterdijk/Station Zuid) en 21 (Amsterdam CS/Geuzenveld) en tram 7 (Slotermeer/Azartplein) stoppen vrijwel voor de deur. Metrostation De Vlugtlaan bevindt zich op 10 minuten lopen (of 1 halte met bus/tram). De NS stations Amsterdam Lelylaan en Amsterdam Sloterdijk bevinden zich op circa tien minuten fietsafstand.
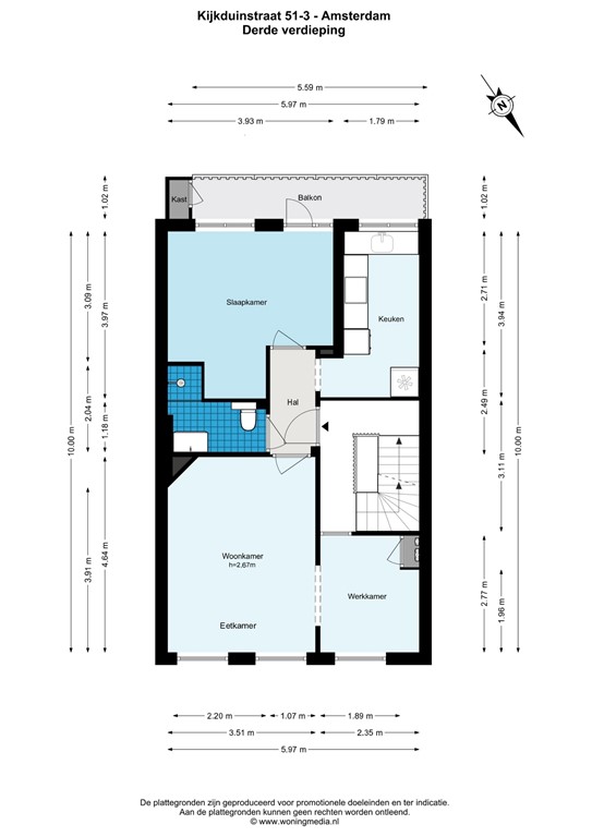
GLOBALE INDELING:
Via het keurig afgewerkte trappenhuis bereikt u de woning, gelegen op de derde verdieping.
Aan de voorzijde van het appartement treft u de ruime en lichte woonkamer met vrij uitzicht. Dankzij de groenstrook in de straat is de bebouwing aan de overzijde op prettige afstand en heeft u veel privacy. De moderne keuken aan de achterzijde voorzien van diverse inbouwapparatuur (o.a. koelkast, oven / magnetron, gasfornuis en design RVS afzuigkap) en toegang tot het achtergelegen zonnige balkon (ligging: west).
De royale slaapkamer, welke is uitgerust met een ruime kast en tweepersoonsbed, biedt door middel van de openslaande deuren toegang tot het achtergelegen balkon
De moderne badkamer is voorzien van inloopdouche, zwevend toilet en een handdoekradiator.
Op de vierde verdieping treft u een ruime zolderkamer (ca. 9 m2) met de aansluiting voor de wasmachine.
EIGENDOMSSITUATIE:
Dit appartement is gelegen op gemeentelijke erfpachtgrond. Het huidige tijdvak loopt tot 01-01-2051 en is afgekocht. Na deze periode is onder de gunstige voorwaarden overgestapt naar eeuwigdurende erfpacht.
PARKEREN:
Vergunningsgebied: West-3.1 | Met een parkeervergunning voor West-3.1 mag u parkeren in West-3 en Adolf van Nassaustraat. Er is op dit moment geen wachtlijst voor dit vergunningsgebied. (bron: gemeente Amsterdam d.d. november 2025).
VERENIGING VAN EIGENAREN:
De VvE genaamd ''Vereniging van Eigenaars Kijkduinstraat 43-105 en Gibraltarstraat 31-41 te Amsterdam" is een actieve en gezonde vereniging, waarbij het beheer wordt gedaan door een professionele beheerder, Stedeplan. De servicekosten bedragen thans EUR. 143,- per maand.
BIJZONDERHEDEN:
- Aantrekkelijke locatie in Amsterdam West;
- gebruiksoppervlakte wonen circa 52 m2;
- hoog rendement C.V. ketel (bj. 2021);
- complete keuken met inbouwapparatuur;
- gelegen op een gewilde locatie;
- zonnig balkon!;
- royale slaapkamer aan de achterzijde;
- mogelijkheid tot een tweede slaapkamer;
- voorbehoud gunning verkoper;
- oplevering in overleg, kan spoedig.
Voor meer informatie over deze woning en/of het maken van een bezichtigingsafspraak kunt u contact opnemen met ons kantoor. Onze medewerkers zijn u graag van dienst.
Deze woning wordt aangeboden conform art 7:17 lid 6 Burgerlijk Wetboek. De opgegeven kenmerken en/of informatie is door ons met de nodige zorgvuldigheid samengesteld. Onzerzijds wordt echter geen enkele aansprakelijkheid aanvaard voor enige onvolledigheid, onjuistheid of anderszins, dan wel de gevolgen daarvan. Alle opgegeven maten en oppervlakten zijn slechts indicatief. De opgegeven kenmerken zijn slechts als aanduiding bedoeld. Algemene Ouderdomsclausule, 'verkoper is geen bewoner geweest' en NEN2580-clausule zijn van toepassing bij deze woning.
De Meetinstructie is gebaseerd op de NEN2580. Het object is opgemeten door een professionele organisatie en eventuele discrepanties in de gegeven metingen kunnen Amstelland Makelaars B.V. niet worden aangerekend. Koper heeft de gelegenheid om een eigen NEN 2580 meting uit te (laten) voeren.
Plattegronden
Kijkduinstraat 51-3 - Amsterdam - 3e_verdieping - 2D.jpg
Kijkduinstraat 51-3 - Amsterdam - Alternatief_1.jpg
Kijkduinstraat 51-3 - Amsterdam - Berging - 2D.jpg
Kijkduinstraat 51-3 - Amsterdam - 3e_verdieping - 3D _1.jpg
Kijkduinstraat 51-3 - Amsterdam - 3e_verdieping - 3D _2.jpg
Kijkduinstraat 51-3 - Amsterdam - Alternatief_1 - 3D _5.jpg
Kijkduinstraat 51-3 - Amsterdam - Alternatief_1 - 3D _6.jpg