Beschrijving
Te koop aangeboden in Amsterdam Zuid (Apollobuurt):
Riant 'top-floor' appartement van ca. 131 m2 aan het statige en geliefde Minervaplein in de Apollobuurt in Amsterdam Zuid. Het appartement is gelegen op de vijfde en zesde (bovenste) verdieping van een karakteristiek monumentaal pand, dat vanzelfsprekend is voorzien van een lift. Intern zijn er, mede door de riante en overzichtelijke vormgeving van het appartement, meerdere indelingsaanpassingen mogelijk.
In de onderbouw van het complex beschikt het appartement over een zeer riante berging van ca. 28 (!) m2 en de huidige eigenaren zijn onder de gunstige voorwaarden overgestapt naar eeuwigdurende erfpacht (momenteel afgekocht t/m 2052). Kortom, een ruim appartement met diverse mogelijkheden in een statig monumentaal pand op top locatie!
OMGEVING:
Het Minervaplein ligt in het hart van de geliefde Apollobuurt, een buurt die bekendstaat om haar brede lanen, groene plantsoenen en stijlvolle architectuur. Op en rond het plein bevinden zich hoogwaardige voorzieningen zoals boetieks, delicatessenzaken en kwaliteitsrestaurants aan de Beethovenstraat en Cornelis Schuytstraat. Sportclubs, scholen en medische praktijken liggen binnen handbereik, net als diverse parken waaronder het Vondelpark, het Beatrixpark én het Amsterdamse Bos. Het gebied biedt een rustige, verfijnde leefomgeving met alle dagelijkse gemakken op loopafstand.
Ook qua bereikbaarheid is Minervaplein 5 ideaal gelegen. Station Zuid en de Zuidas bevinden zich op slechts enkele minuten fietsen, met directe verbindingen naar Schiphol, Rotterdam en andere steden. Trams, bussen en de Noord/Zuidlijn zorgen voor uitstekend openbaar vervoer, terwijl met de auto binnen enkele minuten de ring A10 wordt bereikt. Zo combineert deze locatie het beste van twee werelden: rustig en groen wonen met de voorzieningen, recreatie en dynamiek van Amsterdam binnen directe nabijheid.
INDELING:
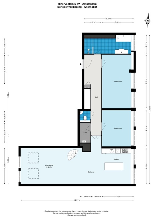
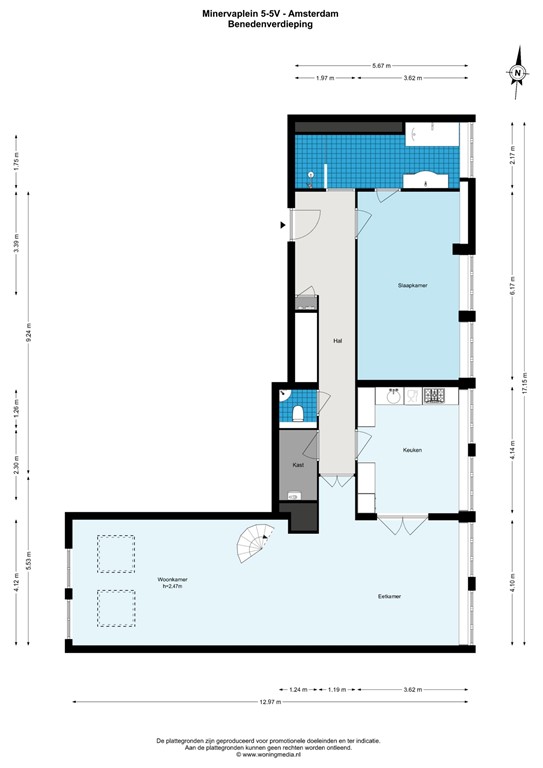
Middels de statige en royale entree van het gebouw, bereikt u de entree van de woning op de vijfde verdieping per lift. De brede centrale hal biedt toegang tot vrijwel alle vertrekken van de woning en loopt via openslaande deuren aan het einde over in de woonkamer.
De badkamer en primary bedroom zijn direct verbonden met elkaar en beide royaal bemeten. Een eenvoudige aanpassing geeft toegang tot de badkamer vanuit de hal. De slaapkamer is naast meer dan voldoende ruimte voor kasten en een royaal bed tevens voorzien van aansluiting voor een airconditioning.
De woonkamer bevindt zich aan het einde van de hal en grenst aan de keuken, die zowel via de hal als middels openslaande deuren in de woonkamer bereikt kan worden. Deze keuken kan eveneens als tweede slaapkamer fungeren als de keuken naar de woonkamer wordt gebracht, iets waar meer dan voldoende ruimte voor is. De woonkamer geniet ramen aan weerzijde van de kamer, heeft een inpandige trap naar de ruimte op de zesde verdieping en is voorzien van een airco installatie.
Op de zesde verdieping bevindt zich een fijne extra kamer, welke ideaal als bijvoorbeeld kantoor kan fungeren. Deze ruimte geeft tevens toegang tot het zonnige terras met westelijke ligging.
Separaat op de woonverdieping bevinden zich voorts een apart toilet en een prettige inpandige bergruimte. In de onderbouw van het complex (bereikbaar per lift) beschikt de woning over een zeer riante berging van maar liefst 28 m2.
EIGENDOMSSITUATIE:
Dit appartement is gelegen op gemeentelijke erfpachtgrond. Het huidige tijdvak loopt tot 15-01-2052 en is afgekocht. Na deze periode is onder de gunstige voorwaarden overgestapt naar eeuwigdurende erfpacht.
PARKEREN:
Uw vergunninggebied is Zuid 2.2| Met een parkeervergunning voor Zuid 2.2 mag u parkeren in Zuid-1, Zuid-2 en Zuid-8. Er is op dit moment geen wachtlijst voor dit vergunningsgebied en het aanvragen van een tweede parkeervergunning behoort tot de mogelijkheden. (bron: gemeente Amsterdam d.d. januari 2026).
VERENIGING VAN EIGENAREN:
De VvE genaamd ''Vereniging van Eigenaars Minervaplein 1-7 te Amsterdam" is een actieve en gezonde vereniging, waarbij het beheer wordt gedaan door een professionele beheerder, Delair Vastgoedbeheer. De servicekosten bedragen thans EUR. 334,- per maand.
BIJZONDERHEDEN:
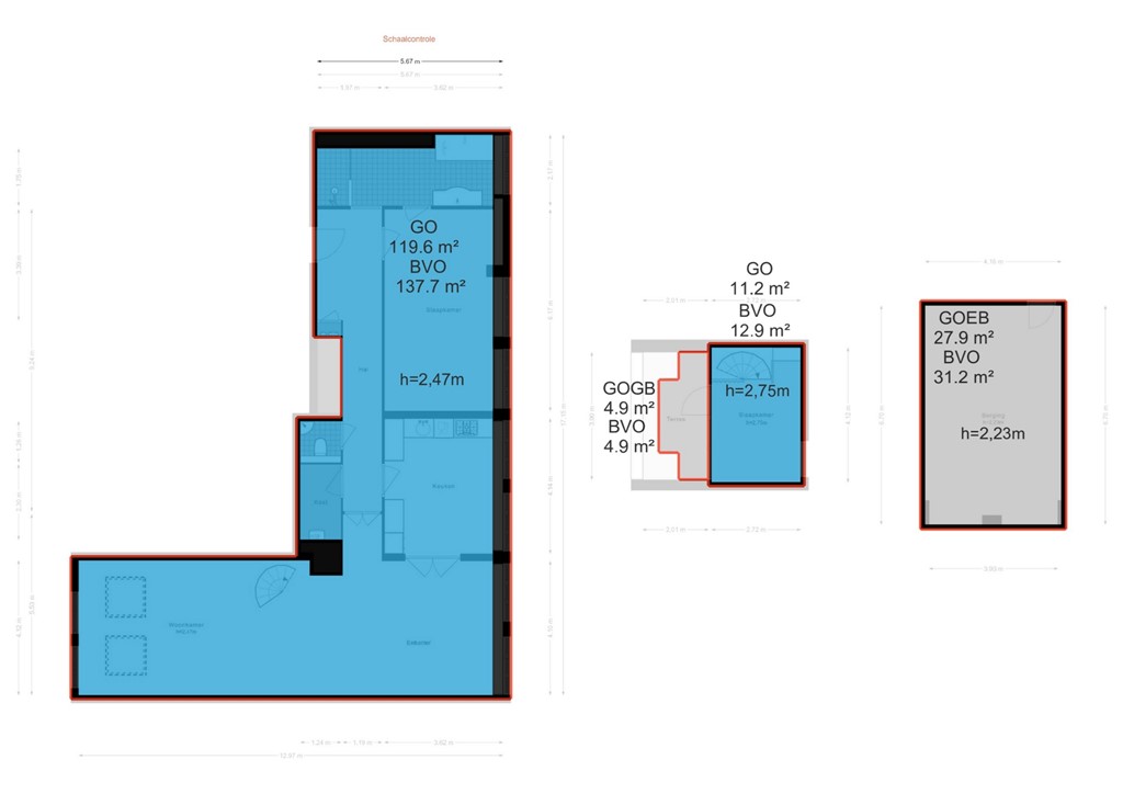
- Woonoppervlakte ca. 131 m2 | NEN2580 meetrapport aanwezig;
- gelegen in de geliefde Apollobuurt, aan het Minervaplein;
- gesitueerd op de vijfde en zesde (bovenste) verdieping van een karakteristiek monumentaal pand;
- ruim appartement met diverse indelingsmogelijkheden;
- terras op de zesde verdieping (ligging: West);
- riante berging in de onderbouw (ca. 28 m2);
- erfpacht afgekocht t/m 2052 - vervolgens gunstig overgestapt naar eeuwigdurende erfpacht;
- professionele en gezonde VvE;
- oplevering in overleg / kan spoedig;
- voorbehoud gunning verkoper.
Voor meer informatie over deze woning en/of het maken van een bezichtigingsafspraak kunt u contact opnemen met ons kantoor. Onze medewerkers zijn u graag van dienst.
Deze woning wordt aangeboden conform art 7:17 lid 6 Burgerlijk Wetboek. De opgegeven kenmerken en/of informatie is door ons met de nodige zorgvuldigheid samengesteld. Onzerzijds wordt echter geen enkele aansprakelijkheid aanvaard voor enige onvolledigheid, onjuistheid of anderzins, dan wel de gevolgen daarvan. Alle opgegeven maten en oppervlakten zijn slechts indicatief. De opgegeven kenmerken zijn slechts als aanduiding bedoeld. Ouderdomsclausule, 'verkoper is geen bewoner geweest' clausule en NEN2580-clausule is van toepassing bij deze woning.
Plattegronden
Minervaplein 5-5V - Amsterdam - Benedenverdieping - 2D.jpg
Minervaplein 5-5V - Amsterdam - Alternatief_1 - 2D.jpg
Minervaplein 5-5V - Amsterdam - Bovenverdieping - 2D.jpg
Minervaplein 5-5V - Amsterdam - Berging - 2D.jpg
Minervaplein 5-5V - Amsterdam - NEN plattegrond.jpg