Description
*BEZICHTIGINGSAANVRAAG VIA MAIL / APPLY THROUGH EMAIL - info@amstellandmakelaars.nl
* APPLY THROUGH EMAIL - info@amstellandmakelaars.nl
For rent in Almere (Tussen de Vaarten south):
Looking for a spacious and modern apartment with unobstructed views and two outdoor spaces? This beautiful 4-room corner apartment of approximately 100 m², located on the first floor of a new-build complex with an elevator and storage, offers everything you need for comfortable living.
The apartment is situated on the first floor and boasts stunning views. The front balcony faces northwest, while the rear outdoor space (adjacent to the gallery) faces southeast, allowing you to enjoy the sun throughout the day.
LOCATION:
The apartment is located in the popular, family-friendly neighborhood Tussen de Vaarten South, centrally positioned between Almere City Center and Almere-Buiten. Within minutes, you can reach supermarkets, schools, childcare facilities, a health center, sports facilities, and public transport (Parkwijk and Almere-Buiten train stations). By car, the Hogering provides quick access to the A6 and A27 – perfect for commuters traveling to Amsterdam, Utrecht, or Lelystad.
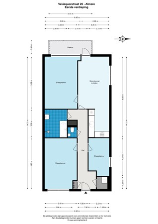
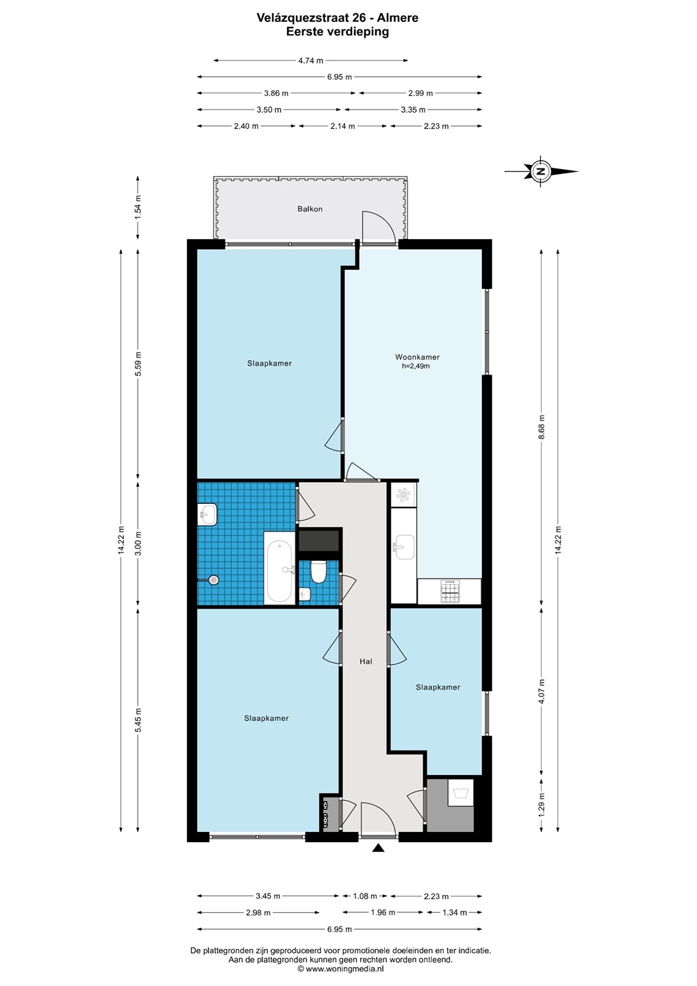
GLOBAL LAYOUT:
The apartment complex has a communal entrance. With the elevator or the staircase you reach the apartment. On the second floor is a roof garden.
The living room is located at the front of the apartment and gives a nice view over the pond and the green. Also, the balcony located across the width of the apartment (approx. 10 m2) accessible from the living room. The modern open kitchen is carried out in a practical arrangement and equipped with various appliances including a dishwasher, fridge-freezer, induction hob and extractor.
Central to the apartment is the luxurious bathroom, equipped with a nice shower, bathtub and washbasin. Separate toilet with hand basin. Furthermore, the apartment has three spacious bedrooms, a laundry room / utility room. And an outdoor area adjacent to the roof garden!
In short, a tight and modern apartment with all amenities!
PARKING:
Around the house there is more than enough parking (2x electric parking spaces) where you can park freely.
PARTICULARS:
- Surface area: approximately 100 m2;
- three bedrooms, open kitchen and 2 balconies;
- Suitable for house sharing;
- Elevator in the complex;
- Beautiful balcony at the front with unobstructed views;
- largely recently renovated;
- Modern kitchen and bathroom;
- spacious separate storage room in the basement;
- All imaginable amenities just steps away;
- rental period minimum 12 months;
- The house is unfurnished only;
- reservation approval landlord.
For more information or to make an appointment, please contact our office. Our staff will be happy to assist you.
This house is offered in accordance with art. 7:17 paragraph 6 Civil Code. The specified features are intended only as an indication.