Description

Offered for rent in Amsterdam-West:

Spacious ground-floor apartment with two bedrooms and an exceptionally large and sunny garden of approximately 90 m²!

Situated in a lively and centrally located area in Amsterdam-West, we are pleased to offer this attractive and upholstered apartment. The property features two well-proportioned bedrooms, a bright living room with open-plan kitchen, and a wonderful south-facing rear garden. Thanks to its practical layout and comfortable living space, this apartment is ideally suited for a couple or two professional sharers.

The combination of generous outdoor space, a pleasant layout and an excellent location makes this property a particularly attractive offering on the Amsterdam rental market.

LOCATION:
The property is situated in a vibrant and pleasant neighborhood in Amsterdam-West. Within walking distance you will find Sierplein, offering a variety of shops, supermarkets and other daily amenities. The immediate surroundings also feature a wide range of inviting cafés and restaurants serving cuisine from around the world.

The location is particularly central. Within approximately 10 minutes by bike, you can reach the Sloterplas and Sloterpark, Theater De Meervaart, Rembrandtpark, Hoofddorpplein, and Vondelpark. Osdorpplein, with its extensive shopping center, is also nearby. In addition, you can cycle to Leidseplein and Amsterdam city center in approximately 15 minutes.

Accessibility is excellent. The property is conveniently located in relation to the A10, A4, and Schiphol Airport, and is easily accessible by public transport thanks to various bus, tram and metro lines in the immediate vicinity. Parking is available on the street by means of a parking permit. According to the municipality, there is currently no waiting list for a parking permit, and it is possible to apply for two permits.

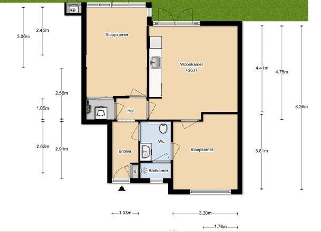
LAYOUT:
Through the private entrance at street level, you enter the apartment into the central hallway, which provides access to almost all rooms.

At the rear of the apartment, you will find the spacious living room with open-plan kitchen and the master bedroom. The bright living room is directly connected to the garden and offers access, through French doors, to the impressive rear garden of approximately 90 m². The garden is ideally positioned facing south, allowing you to enjoy the sun for most of the day. In addition, the garden features two practical storage sheds.

The open-plan kitchen has a modern finish and is equipped with various built-in appliances.

The second bedroom is situated at the front of the apartment. Both this bedroom and the entrance hall provide access to the bathroom, which is fitted with a walk-in shower, washbasin vanity unit and toilet.

PARKING:
Permit area: Nieuw-West 4. With a parking permit for Nieuw-West 4, you may park in Nieuw-West 4 and Nieuw-West 7. At present, there is no waiting list. A second parking permit can also be applied for. (Source: Municipality of Amsterdam, March 2026).

PARTICULARS:

Attractive 3-room ground-floor apartment;

Living area approximately 65 m²;

Exceptionally large south-facing garden of approximately 90 m²;

Two well-proportioned bedrooms;

Property is offered upholstered;

Possibility to apply for two parking permits (according to municipality, no waiting list);

Security deposit: two months’ rent.

This property is offered in accordance with Article 7:17 paragraph 6 of the Dutch Civil Code. The specified characteristics and/or information have been compiled by us with due care. However, we accept no liability whatsoever for any incompleteness, inaccuracy or otherwise, or for the consequences thereof. All stated measurements and surface areas are indicative only. The stated characteristics are intended as an indication only. A general age clause and NEN 2580 clause apply to this property.

The measurement instruction is based on the NEN 2580 standard. The property has been measured by a professional organization, and any discrepancies in the stated measurements cannot be held against Amstelland Makelaars B.V. The purchaser is given the opportunity to carry out, or have carried out, their own NEN 2580 measurement.

Features