Description

For sale in Bergen (NH):

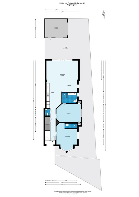
On the sought-after Dokter van Peltlaan in Bergen, we are pleased to offer for sale this fully renovated, move-in ready ground-floor apartment (approx. 103 m²). This modern and charming home features two spacious bedrooms, two luxurious bathrooms and a wonderful garden where you can enjoy outdoor living in peace and quiet. The property combines comfort and style with an excellent location close to the centre of Bergen.

SURROUNDINGS:
Located in charming Bergen, this residential area offers the perfect balance between beautiful nature and modern conveniences. Enjoy the nearby wooded surroundings, expansive dunes and breathtaking beaches.

For those seeking convenience and comfort, a variety of amenities can be found just around the corner. Explore the nearby shops, boutiques and supermarkets for your daily groceries. Treat yourself to the excellent restaurants and cafés in the area, where you can enjoy delicious culinary experiences.

Bergen also offers a wide range of recreational opportunities. You can make use of nearby sports facilities such as gyms, tennis courts and golf courses. There are also several recreation areas where you can enjoy running, picnicking and organising family outings.

This apartment is situated on the edge of the cosy and vibrant village centre. Within a short walking distance (approximately 100 m) you will reach the centre of the beautiful artists’ village of Bergen, with a wide variety of shops, specialist stores, boutiques, restaurants and welcoming cafés.

By bike you can reach the beach at Bergen aan Zee in no time. In short: beach, dunes and forest within easy reach. By car you can quickly access the A9 motorway towards Amsterdam, Schiphol, The Hague and Utrecht. The historic city centre of Alkmaar can be reached within fifteen minutes.

GLOBAL LAYOUT:
Through the entrance you enter the bright and spacious living room. The living room is characterised by large windows that provide plenty of natural light and a pleasant atmosphere. The luxury open-plan kitchen is equipped with high-quality built-in appliances and offers ample workspace and storage. Here you can easily prepare elaborate meals and entertain guests.

Furthermore, the property offers two generous bedrooms, both well-proportioned and practically laid out. Both bedrooms have their own en-suite bathroom.

From the living room you have access to the sunny south-facing garden. This outdoor space offers plenty of opportunities to relax, garden or enjoy dining outside. The garden is a pleasant extension of the living space and makes the apartment even more attractive. A very spacious storage shed of approximately 16 m² is located in the garden.

OWNERS’ ASSOCIATION (VvE):
The Owners’ Association (VvE) has recently been established. The monthly contribution is approximately € 182,-

PARKING:
The apartment comes with a private parking space. In addition, you can apply for a parking permit if you live or work in a paid parking zone. You may have a maximum of two permits registered in your name (source: Municipality of Bergen, February 2026).

FEATURES:
- Fully renovated using high-quality materials;
- very well insulated (incl. floor insulation, high-efficiency HR central heating boiler and insulating glazing);
- fantastic location close to the centre;
- sunny and spacious garden;
- entire property fitted with underfloor heating;
- living area: 103 m²;
- two bedrooms, each with an en-suite bathroom;
- delivery/transfer in consultation (possible at short notice).

Measurements according to NEN 2580 measurement report and the Land Registry (see attachments / sales dossier):
- Gross floor area (BVO): 115.2 m²
- Net living area (GO living): 103 m²
- External storage space: 15.8 m²
- Volume: 384.62 m³

In short, a unique and comfortable apartment in a prime location, ready to move into without any renovation work. Schedule a viewing soon and experience the atmosphere and quality of this beautiful home for yourself.

This property is offered in accordance with Article 7:17 paragraph 6 of the Dutch Civil Code. The stated features and/or information have been compiled by us with due care. However, we accept no liability for any incompleteness, inaccuracy or otherwise, nor for the consequences thereof. All stated measurements and surface areas are indicative only. The stated features are intended as guidance only. A general age clause, a clause stating the seller has not occupied the property, and the NEN 2580 clause apply to this property.

The measurement instruction is based on NEN 2580. The property has been measured by a professional organisation and any discrepancies in the stated measurements cannot be attributed to Amstelland Makelaars B.V. The buyer has the opportunity to have an independent NEN 2580 measurement carried out.

Features