| Price | €585,000 |
| Type of residence | Apartment, upstairs apartment, apartment |
| Liveable area | 129 m² |
| Acceptance | By consultation |
| Status | Sold subject to conditions |
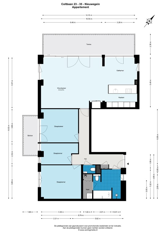
For sale in Nieuwegein (Rijnhuizen): Stunning and luxurious 4-room apartment (approx. 129 m²) featuring a beautiful rooftop terrace, spacious balcony, private parking space, and private storage, ideally located in Nieuwegein! This well-designed apartment (energy label: A+++) is situated on the third floor of a high-end apartment complex (built in 2023) and offers everything you are looking for: a bright living room, modern luxury kitchen, three full-sized bedrooms, a rooftop terrace directly connected to the living area, a pleasant balcony to enjoy the outdoors, and a private parking space! LOCATION: The apartment is located near the center of Nieuwegein, close to City Plaza, a covered shopping center (150 shops) offering a wide variety of stores, supermarkets, restaurants, and amenities. Everything you need is literally within close proximity. Accessibility is excellent: the tram will take you to Utrecht city center in approximately 20 minutes, and major highways (A2, A12, and A27) are easily accessible. Additionally, there are various green areas and recreational facilities in the immediate surroundings. LAYOUT: Through the representative central entrance with elevator and spacious stairwell, you reach the apartment on the third floor. Upon entering, the bright and spacious living room immediately stands out. Thanks to the large windows at the front, the space benefits from excellent natural light. Combined with the high-quality finishes, this creates a particularly pleasant and luxurious living experience. The open kitchen is generously sized and located at the front, directly adjacent to the seating area. The kitchen is finished with high-quality materials and equipped with various built-in appliances (including a dishwasher, induction hob with integrated extractor, oven, combination microwave, Quooker 5-in-1 with sparkling water function), a stylish composite worktop, and ample storage space. At the front of the apartment, you will find the generous terrace of approx. 24 m², facing west and accessible via elegant sliding doors from both the living room and kitchen. The terrace spans the full width of the apartment and offers plenty of space for a large dining table and a comfortable lounge set – the perfect place to enjoy the afternoon and evening sun. Through the hallway, you reach the three well-proportioned bedrooms, a spacious bathroom, and a separate toilet. One of the bedrooms provides access to a large and pleasant south-facing balcony overlooking the beautifully landscaped communal courtyard garden. The third bedroom is currently used as a home office. The generous bathroom is luxuriously finished and equipped with a bathtub/whirlpool, spacious walk-in shower, washbasin unit, and a second toilet. Here too, the high-quality finish and custom work are immediately noticeable. Additionally, there is a separate toilet located in the hallway. The entire apartment features a high-quality PVC floor in a herringbone pattern, underfloor heating and cooling (individually adjustable per room), built-in wardrobes, and an alarm system. On the ground floor of the complex, you will find the private parking space with its own charging station in a secured parking garage, as well as a spacious private storage unit belonging to the apartment. HOMEOWNERS’ ASSOCIATION: The Homeowners’ Association, named ‘VvE Terraza Nieuwegein’, is professionally managed by Servus VvE Beheer. The current service charges amount to EUR 233,- per month (for both the apartment and parking space). PARKING: The property includes a private parking space with its own charging station in the underground garage. OWNERSHIP: The property is situated on freehold land. PARTICULARS: - Very bright and luxuriously finished apartment on the third floor; - Newly landscaped communal courtyard garden; - Underfloor heating and cooling; - High-end apartment complex completed in 2023; - Wonderful outdoor spaces (rooftop terrace & balcony) totaling approx. 31 m², facing south and west; - Private parking space with charging station in a secured garage; - Elevator present; - Separate storage on the ground floor; - Communal bicycle storage on the ground floor; - Energy label A+++; - Gas-free complex equipped with heat pump and solar panels; - Excellent accessibility (public transport and highways); - Delivery in consultation. Measurements in accordance with NEN 2580 and Cadastre (see annexes / sales file): - Gross floor area: 143.9 m² (GFA) - Usable living area: 128.7 m² - External outdoor space (building-related): 30.9 m² - Volume: 470.6 m³ This property is offered in accordance with Article 7:17 paragraph 6 of the Dutch Civil Code. The provided information has been compiled with due care. However, no liability is accepted for any inaccuracies, incompleteness, or consequences thereof. All stated measurements and surfaces are indicative. The NEN 2580 clause and the ‘seller has not occupied the property’ clause apply. The measurement instruction is based on NEN 2580. The property has been measured by a professional organization, and any discrepancies in measurements cannot be attributed to Amstelland Makelaars B.V. The buyer has the opportunity to carry out their own NEN 2580 measurement.
| Reference number | 02937 |
| Asking price | €585,000 |
| Status | Sold subject to conditions |
| Acceptance | By consultation |
| Offered since | 20 March 2026 |
| Last updated | 15 April 2026 |
| Type of residence | Apartment, upstairs apartment, apartment |
| Floor | 3rd floor |
| Type of construction | Existing estate |
| Accessibility | People with disabilities Seniors |
| Construction period | 2023 |
| Roof materials | Bitumen |
| Rooftype | Flat |
| Isolations | Full HR glazing Insulated glazing |
| Floor Surface | 129 m² |
| Content | 471 m³ |
| External surface area storage rooms | 17 m² |
| External surface area | 31 m² |
| Balcony | 7.65 m² |
| Number of floors | 1 |
| Number of rooms | 4 (of which 3 bedrooms) |
| Number of bathrooms | 1 (and 1 separate toilet) |
| Location | Near highway Near public transport On a quiet street Residential area |
| Type | Sun terrace |
| Main garden | Yes |
| Orientation | West |
| Condition | Beautifully landscaped |
| Energy certificate | A+++ |
| Number of parking spaces | 1 |
| Number of covered parking spaces | 1 |
| Water heating | Centrally supplied Solar water heating |
| Heating | Heat pump Heat recovery system |
| Ventilation method | Balnced ventilation Mechanical ventilation |
| Bathroom facilities | Bath Double sink Toilet Walkin shower Washbasin furniture Whirlpool |
| Parking | Underground garage |
| Has a balcony | Yes |
| Has CCTV | Yes |
| Has an elevator | Yes |
| Has fibre optical cable | Yes |
| Garden available | Yes |
| Has a storage room | Yes |
| Has sliding doors | Yes |
| Has solar panels | Yes |
| Has ventilation | Yes |
| Registered at Chamber of Commerce | Yes |
| Annual meeting | Yes |
| Reserve fund | Yes |
| Long term maintenance plan | Yes |
| Home insurance | Yes |
| Cadastral designation | Jutphaas D 3988 |
| Range | Condominium |
| Ownership | Full ownership |
| Index number | 33 |