Met een eigen account kun je panden volgen, opslaan als favoriet, je zoekprofiel opslaan en jouw eigen notities bij een huis maken.
Algemeen
Te koop aangeboden in Amsterdam Centrum (Grachtengordel Zuid):
Gelegen tegenover het geliefde Amstelveld, in een prachtig en uitstekend onderhouden Rijksmonumentaal* pand uit 1749, bevindt zich dit sfeervolle en hoogwaardig afgewerkte appartement. De woning is onder begeleiding van Concrete Design volledig intern ontworpen en mag met recht een design loft worden genoemd. Vanuit de openslaand... Meer informatie
Gelegen tegenover het geliefde Amstelveld, in een prachtig en uitstekend onderhouden Rijksmonumentaal* pand uit 1749, bevindt zich dit sfeervolle en hoogwaardig afgewerkte appartement. De woning is onder begeleiding van Concrete Design volledig intern ontworpen en mag met recht een design loft worden genoemd. Vanuit de openslaand... Meer informatie
| Kenmerken | |
|---|---|
| Alle kenmerken | |
| Type object | Appartement, bovenwoning |
| Bouwperiode | 1749 |
| Status | Verkocht |
| Aangeboden sinds | Vrijdag 14 november 2025 |
Kenmerken
| Overdracht | |
|---|---|
| Referentienummer | 02902 |
| Vraagprijs | € 650.000,- k.k. |
| Servicekosten | € 192,- |
| Inrichting | Optioneel |
| Status | Verkocht |
| Aanvaarding | In overleg |
| Aangeboden sinds | Vrijdag 14 november 2025 |
| Laatste wijziging | Vrijdag 12 december 2025 |
| Bouw | |
|---|---|
| Type object | Appartement, bovenwoning |
| Woonlaag | 1e woonlaag |
| Soort bouw | Bestaande bouw |
| Bouwperiode | 1749 |
| Dakbedekking | Dakpannen |
| Type dak | Zadeldak |
| Isolatievormen | Dakisolatie Muurisolatie Vloerisolatie |
| Oppervlaktes en inhoud | |
|---|---|
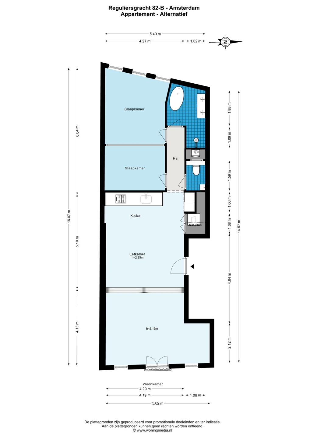
| Woonoppervlakte | 77 m² |
| Inhoud | 219 m³ |
| Oppervlakte externe bergruimte | 7 m² |
| Indeling | |
|---|---|
| Aantal bouwlagen | 1 |
| Aantal kamers | 2 (waarvan 1 slaapkamer) |
| Aantal badkamers | 1 (en 1 apart toilet) |
| Locatie | |
|---|---|
| Ligging | Aan rustige weg Aan vaarwater Aan water Dichtbij openbaar vervoer In centrum Nabij school Vrij uitzicht |
| CV ketel | |
|---|---|
| CV ketel | Nefit HR |
| Warmtebron | Gas |
| Combiketel | Ja |
| Eigendom | Eigendom |
| Uitrusting | |
|---|---|
| Warm water | CV-ketel |
| Verwarmingssysteem | Centrale verwarming |
| Ventilatie methode | Mechanische ventilatie |
| Badkamervoorzieningen | Inloopdouche Ligbad Wastafelmeubel |
| Heeft een balkon | Ja |
| Heeft schuur/berging | Ja |
| Heeft ventilatie | Ja |
| Vereniging van Eigenaren | |
|---|---|
| Ingeschreven bij de KvK | Ja |
| Jaarlijkse vergadering | Ja |
| Periodieke bijdrage | Ja |
| Opstal verzekering | Ja |
| Kadastrale gegevens | |
|---|---|
| Kadastrale aanduiding | Amsterdam I 11082 |
| Omvang | Appartementsrecht of complex |
| Eigendomsituatie | Eigen grond |
Beschrijving
Te koop aangeboden in Amsterdam Centrum (Grachtengordel Zuid):
Gelegen tegenover het geliefde Amstelveld, in een prachtig en uitstekend onderhouden Rijksmonumentaal* pand uit 1749, bevindt zich dit sfeervolle en hoogwaardig afgewerkte appartement. De woning is onder begeleiding van Concrete Design volledig intern ontworpen en mag met recht een design loft worden genoemd. Vanuit de openslaande deuren met Frans balkon geniet u van een vrij en schilderachtig uitzicht over het Amstelveld – een uitzicht dat de woning een uitzonderlijk lichte, serene en aangename sfeer geeft.
Het pand is in 2003 volledig gerenoveerd, inclusief een nieuwe fundering. In de onderbouw beschikt de woning over een royale privéberging, ideaal voor het stallen van fietsen en extra opslag. Vanzelfsprekend is de woning gelegen op eigen grond.
Dankzij de slimme indeling en royale maatvoering is dit appartement de perfecte pied-à-terre voor wie op zoek is naar een stijlvolle, comfortabele woning in dit geliefde deel van de stad. Bovendien biedt de ruimte de mogelijkheid om – indien gewenst – een extra (slaap)kamer of werkruimte te realiseren, waardoor het appartement flexibel kan worden ingedeeld naar eigen behoefte (zie alternatieve plattegrond ter inspiratie).
SPECIFICATIES:
- Gelegen aan, en met direct zicht op, het geliefde Amstelveld;
- woonoppervlakte: 77 m² (NEN2580-meetrapport aanwezig);
- intern volledig ontworpen door Concrete Design;
- Rijksmonument (nummer 4940);
- voorzien van een hoogwaardige keuken (Gaggenau);
- luxe open badkamer met ruime inloopdouche en ligbad;
- royale slaapkamer met kledingruimte aan de achterzijde;
- voorzien van hoogwaardige op- en inbouwverlichting;
- designmeubilair maakt onderdeel uit van de verkoop;
- mogelijkheid tot het creëren van een extra (slaap)kamer;
- actieve en gezonde Vereniging van Eigenaars;
- voorzien van vloer- én plafondisolatie;
- voorbehoud gunning verkoper;
- oplevering: in overleg, kan spoedig.
OMGEVING:
Dit bijzonder fraaie Rijksmonument is gelegen aan de Reguliersgracht, nabij de hoek met de Prinsengracht (“the point of the seven bridges”) en het Amstelveld. In de directe omgeving vindt u de bekende Utrechtsestraat met een divers aanbod aan hoogwaardige winkels en gezellige horecagelegenheden.
Daarnaast bevinden zich tal van musea, culturele voorzieningen en andere bezienswaardigheden op loopafstand. Het Rembrandtplein en de Amstel liggen letterlijk om de hoek, terwijl de levendigheid van De Pijp op slechts vijf minuten fietsafstand te bereiken is.
De bereikbaarheid is uitstekend, zowel met de auto als per openbaar vervoer. Diverse tramlijnen en twee metrostations (Noord/Zuidlijn en Waterlooplein) bevinden zich op korte loopafstand. De Ring A10 en uitvalswegen zijn eenvoudig bereikbaar. Parkeren kan via het vergunningensysteem en in diverse nabijgelegen parkeergarages.
INDELING:
Via de brede entreedeur betreedt u het pand, waarna u toegang heeft tot het ruime en verzorgde gemeenschappelijke trappenhuis met comfortabele trap. De entree van de woning bevindt zich op de eerste verdieping.
Bij binnenkomst betreedt u direct de woonkamer. Hier vallen de luxe afwerking en de loft-achtige open indeling direct op. Het zitgedeelte aan de voorzijde biedt dankzij het Franse balkon een prachtig uitzicht over het Amstelveld en de Reguliersgracht. Inbouwkasten met een geïntegreerde werkplek maken deze ruimte bovendien uiterst praktisch.
Centraal in de woning bevindt zich het ruime eetgedeelte met luxe open keuken. Deze designkeuken is volledig uitgerust met Gaggenau-apparatuur en alle denkbare gemakken, waaronder een teppanyaki-grillplaat, koel-/vriescombinatie, vaatwasser en combioven. De wasmachine is eveneens fraai ingebouwd. Separaat vindt u het toilet met fonteintje.
Aan de achterzijde bevindt zich het slaapgedeelte met open badkamer en aangrenzende kledingruimte. De badkamer beschikt over een vrijstaand ligbad, wastafelmeubel en separate inloopdouche (met aansluitend de opstelling voor de cv-installatie). De kledingruimte biedt ruime opbergmogelijkheden.
De gehele woning is voorzien van een fraaie houten vloer, B&O-installaties, designradiatoren en diverse op maat gemaakte inbouwkasten.
EIGENDOMSSITUATIE:
Dit pand is gelegen op eigen grond. Er is dus geen sprake van erfpacht.
VERENIGING VAN EIGENAREN:
De “Vereniging van Eigenaars – Reguliersgracht 82 te Amsterdam” is een gezonde en actieve VvE die wordt beheerd door de leden zelf. De servicekosten bedragen thans € 192,- per maand. Recent (eind 2024) zijn onder andere herstelwerkzaamheden aan het dak uitgevoerd en is het pand opnieuw geschilderd.
* Monument 4940 | Pakhuis met puntgevel (laat XVII).
Voor meer informatie over deze woning en/of het maken van een bezichtigingsafspraak kunt u contact opnemen met ons kantoor. Onze medewerkers staan u graag te woord.
Deze woning wordt aangeboden conform art. 7:17 lid 6 Burgerlijk Wetboek. De verstrekte informatie is met zorg samengesteld. Desondanks aanvaarden wij geen aansprakelijkheid voor eventuele onvolledigheden of onjuistheden, dan wel de gevolgen daarvan. Alle maten en oppervlakten zijn indicatief. De algemene ouderdomsclausule, ‘verkoper is geen bewoner geweest’-clausule en NEN2580-clausule zijn van toepassing.
Gelegen tegenover het geliefde Amstelveld, in een prachtig en uitstekend onderhouden Rijksmonumentaal* pand uit 1749, bevindt zich dit sfeervolle en hoogwaardig afgewerkte appartement. De woning is onder begeleiding van Concrete Design volledig intern ontworpen en mag met recht een design loft worden genoemd. Vanuit de openslaande deuren met Frans balkon geniet u van een vrij en schilderachtig uitzicht over het Amstelveld – een uitzicht dat de woning een uitzonderlijk lichte, serene en aangename sfeer geeft.
Het pand is in 2003 volledig gerenoveerd, inclusief een nieuwe fundering. In de onderbouw beschikt de woning over een royale privéberging, ideaal voor het stallen van fietsen en extra opslag. Vanzelfsprekend is de woning gelegen op eigen grond.
Dankzij de slimme indeling en royale maatvoering is dit appartement de perfecte pied-à-terre voor wie op zoek is naar een stijlvolle, comfortabele woning in dit geliefde deel van de stad. Bovendien biedt de ruimte de mogelijkheid om – indien gewenst – een extra (slaap)kamer of werkruimte te realiseren, waardoor het appartement flexibel kan worden ingedeeld naar eigen behoefte (zie alternatieve plattegrond ter inspiratie).
SPECIFICATIES:
- Gelegen aan, en met direct zicht op, het geliefde Amstelveld;
- woonoppervlakte: 77 m² (NEN2580-meetrapport aanwezig);
- intern volledig ontworpen door Concrete Design;
- Rijksmonument (nummer 4940);
- voorzien van een hoogwaardige keuken (Gaggenau);
- luxe open badkamer met ruime inloopdouche en ligbad;
- royale slaapkamer met kledingruimte aan de achterzijde;
- voorzien van hoogwaardige op- en inbouwverlichting;
- designmeubilair maakt onderdeel uit van de verkoop;
- mogelijkheid tot het creëren van een extra (slaap)kamer;
- actieve en gezonde Vereniging van Eigenaars;
- voorzien van vloer- én plafondisolatie;
- voorbehoud gunning verkoper;
- oplevering: in overleg, kan spoedig.
OMGEVING:
Dit bijzonder fraaie Rijksmonument is gelegen aan de Reguliersgracht, nabij de hoek met de Prinsengracht (“the point of the seven bridges”) en het Amstelveld. In de directe omgeving vindt u de bekende Utrechtsestraat met een divers aanbod aan hoogwaardige winkels en gezellige horecagelegenheden.
Daarnaast bevinden zich tal van musea, culturele voorzieningen en andere bezienswaardigheden op loopafstand. Het Rembrandtplein en de Amstel liggen letterlijk om de hoek, terwijl de levendigheid van De Pijp op slechts vijf minuten fietsafstand te bereiken is.
De bereikbaarheid is uitstekend, zowel met de auto als per openbaar vervoer. Diverse tramlijnen en twee metrostations (Noord/Zuidlijn en Waterlooplein) bevinden zich op korte loopafstand. De Ring A10 en uitvalswegen zijn eenvoudig bereikbaar. Parkeren kan via het vergunningensysteem en in diverse nabijgelegen parkeergarages.
INDELING:
Via de brede entreedeur betreedt u het pand, waarna u toegang heeft tot het ruime en verzorgde gemeenschappelijke trappenhuis met comfortabele trap. De entree van de woning bevindt zich op de eerste verdieping.
Bij binnenkomst betreedt u direct de woonkamer. Hier vallen de luxe afwerking en de loft-achtige open indeling direct op. Het zitgedeelte aan de voorzijde biedt dankzij het Franse balkon een prachtig uitzicht over het Amstelveld en de Reguliersgracht. Inbouwkasten met een geïntegreerde werkplek maken deze ruimte bovendien uiterst praktisch.
Centraal in de woning bevindt zich het ruime eetgedeelte met luxe open keuken. Deze designkeuken is volledig uitgerust met Gaggenau-apparatuur en alle denkbare gemakken, waaronder een teppanyaki-grillplaat, koel-/vriescombinatie, vaatwasser en combioven. De wasmachine is eveneens fraai ingebouwd. Separaat vindt u het toilet met fonteintje.
Aan de achterzijde bevindt zich het slaapgedeelte met open badkamer en aangrenzende kledingruimte. De badkamer beschikt over een vrijstaand ligbad, wastafelmeubel en separate inloopdouche (met aansluitend de opstelling voor de cv-installatie). De kledingruimte biedt ruime opbergmogelijkheden.
De gehele woning is voorzien van een fraaie houten vloer, B&O-installaties, designradiatoren en diverse op maat gemaakte inbouwkasten.
EIGENDOMSSITUATIE:
Dit pand is gelegen op eigen grond. Er is dus geen sprake van erfpacht.
VERENIGING VAN EIGENAREN:
De “Vereniging van Eigenaars – Reguliersgracht 82 te Amsterdam” is een gezonde en actieve VvE die wordt beheerd door de leden zelf. De servicekosten bedragen thans € 192,- per maand. Recent (eind 2024) zijn onder andere herstelwerkzaamheden aan het dak uitgevoerd en is het pand opnieuw geschilderd.
* Monument 4940 | Pakhuis met puntgevel (laat XVII).
Voor meer informatie over deze woning en/of het maken van een bezichtigingsafspraak kunt u contact opnemen met ons kantoor. Onze medewerkers staan u graag te woord.
Deze woning wordt aangeboden conform art. 7:17 lid 6 Burgerlijk Wetboek. De verstrekte informatie is met zorg samengesteld. Desondanks aanvaarden wij geen aansprakelijkheid voor eventuele onvolledigheden of onjuistheden, dan wel de gevolgen daarvan. Alle maten en oppervlakten zijn indicatief. De algemene ouderdomsclausule, ‘verkoper is geen bewoner geweest’-clausule en NEN2580-clausule zijn van toepassing.