With an account you can save your favourite properties, add search profiles, be notified of changes, and more.
General
For sale in Amsterdam South (Apollobuurt):
Spacious “top-floor” apartment of approx. 131 m² located on the elegant and highly sought-after Minervaplein in Amsterdam South’s Apollobuurt. The apartment is situated on the fifth and sixth (top) floors of a characteristic listed monumental building, naturally equipped with an elevator. Due to the generous and well-organised layout, several intern... More info
Spacious “top-floor” apartment of approx. 131 m² located on the elegant and highly sought-after Minervaplein in Amsterdam South’s Apollobuurt. The apartment is situated on the fifth and sixth (top) floors of a characteristic listed monumental building, naturally equipped with an elevator. Due to the generous and well-organised layout, several intern... More info
| Features | |
|---|---|
| All characteristics | |
| Type of residence | Apartment, upstairs apartment, apartment |
| Construction period | 1932 |
| Status | Sold |
| Offered since | 18 February 2026 |
Features
| Offer | |
|---|---|
| Reference number | 02945 |
| Asking price | €950,000 |
| Service costs | €334 |
| Status | Sold |
| Acceptance | By consultation |
| Offered since | 18 February 2026 |
| Last updated | 23 March 2026 |
| Construction | |
|---|---|
| Type of residence | Apartment, upstairs apartment, apartment |
| Floor | 5th floor |
| Type of construction | Existing estate |
| Accessibility | People with disabilities Seniors |
| Construction period | 1932 |
| Roof materials | Bitumen Tiles |
| Rooftype | Composite |
| Isolations | Floor Insulated glazing Roof Wall |
| Surfaces and content | |
|---|---|
| Floor Surface | 131 m² |
| Content | 421 m³ |
| External surface area storage rooms | 28 m² |
| External surface area | 5 m² |
| Layout | |
|---|---|
| Number of floors | 2 |
| Number of rooms | 3 (of which 2 bedrooms) |
| Number of bathrooms | 1 (and 1 separate toilet) |
| Outdoors | |
|---|---|
| Location | Near highway Near public transport Near school Residential area |
| Energy consumption | |
|---|---|
| Energy certificate | A |
| Boiler | |
|---|---|
| Type of boiler | HR |
| Heating source | Gas |
| Year of manufacture | 2016 |
| Combiboiler | Yes |
| Boiler ownership | Owned |
| Features | |
|---|---|
| Water heating | Central heating system |
| Heating | Central heating |
| Ventilation method | Mechanical ventilation |
| Bathroom facilities | Bath Walkin shower Washbasin furniture |
| Has AC | Yes |
| Has cable TV | Yes |
| Has an elevator | Yes |
| Has an internet connection | Yes |
| Has a storage room | Yes |
| Has ventilation | Yes |
| Association of owners | |
|---|---|
| Registered at Chamber of Commerce | Yes |
| Annual meeting | Yes |
| Periodic contribution | Yes |
| Reserve fund | Yes |
| Long term maintenance plan | Yes |
| Maintenance forecast | Yes |
| Home insurance | Yes |
| Cadastral informations | |
|---|---|
| Cadastral designation | Amsterdam Z 2384 |
| Range | Condominium |
| Ownership | Ground lease |
| Index number | A23 |
| Charges | With redemption option, bought off until 14/01/2052 |
Description
For sale in Amsterdam South (Apollobuurt):
Spacious “top-floor” apartment of approx. 131 m² located on the elegant and highly sought-after Minervaplein in Amsterdam South’s Apollobuurt. The apartment is situated on the fifth and sixth (top) floors of a characteristic listed monumental building, naturally equipped with an elevator. Due to the generous and well-organised layout, several internal layout changes are possible.
On the lower level of the building, the apartment includes an exceptionally large private storage room of approx. 28 (!) m². In addition, the current owners have switched to perpetual leasehold under favourable terms (currently paid off through 2052). In short: a spacious apartment with various possibilities in a stately monumental building in a prime location!
SURROUNDINGS:
Minervaplein is located in the heart of the beloved Apollobuurt, an area known for its wide avenues, green squares and stylish architecture. On and around the square you will find high-quality amenities such as boutiques, delicatessens and excellent restaurants along Beethovenstraat and Cornelis Schuytstraat. Sports clubs, schools and medical practices are close by, as are several parks including Vondelpark, Beatrixpark and the Amsterdamse Bos. The neighbourhood offers a calm, refined living environment with everyday conveniences within walking distance.
In terms of accessibility, Minervaplein 5 is ideally situated. Station Zuid and the Zuidas business district are only a few minutes away by bike, with direct connections to Schiphol Airport, Rotterdam and other cities. Trams, buses and the North/South metro line provide excellent public transport links, while by car the A10 ring road can be reached within minutes. This location truly combines the best of both worlds: peaceful, green living with the amenities, recreation and vibrancy of Amsterdam close at hand.
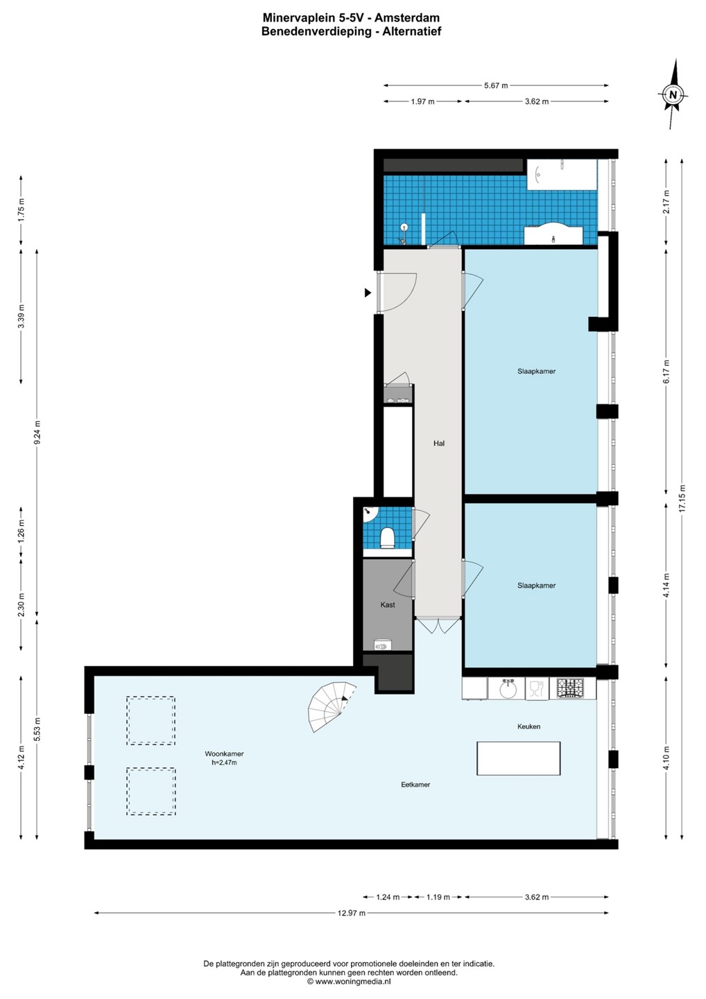
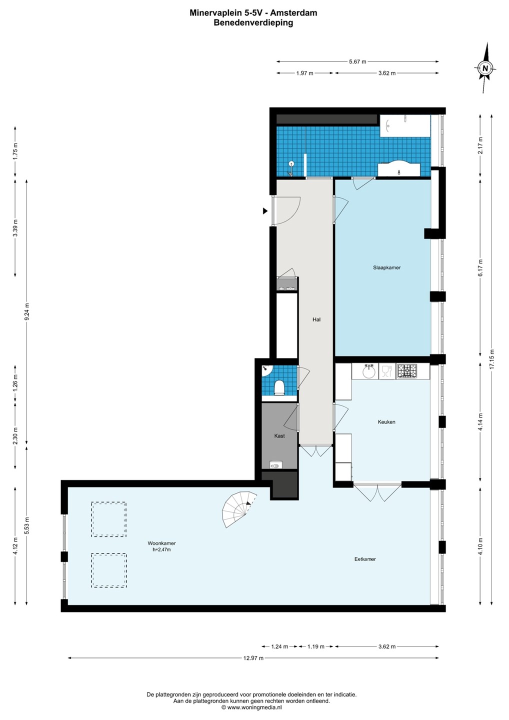
LAYOUT:
Via the stately and spacious main entrance of the building, you reach the apartment entrance on the fifth floor by elevator. The wide central hallway provides access to nearly all rooms and continues through double doors at the end into the living room.
The bathroom and primary bedroom are directly connected and both are generously sized. A simple adjustment would allow access to the bathroom from the hallway. In addition to ample space for wardrobes and a large bed, the bedroom is also equipped with a connection for air conditioning.
The living room is located at the end of the hallway and adjoins the kitchen, which can be accessed both from the hall and through double doors from the living room. This kitchen could also serve as a second bedroom if the kitchen is relocated to the living room—there is more than enough space to do so. The living room has windows on both sides, an internal staircase to the sixth-floor space, and is fitted with an air-conditioning system.
On the sixth floor there is a pleasant additional room, ideal for use as a home office, for example. This room also provides access to the sunny west-facing terrace.
Also on the main living level you will find a separate toilet and a convenient internal storage room. In the building’s basement level (accessible by elevator), the apartment has an exceptionally large private storage unit of no less than 28 m².
LEASEHOLD (OWNERSHIP) SITUATION:
This apartment is situated on municipal leasehold land. The current lease period runs until 15-01-2052 and has been paid off. After this period, the owners have switched to perpetual leasehold under favourable terms.
PARKING:
Your permit area is Zuid 2.2. With a parking permit for Zuid 2.2 you may park in Zuid-1, Zuid-2 and Zuid-8. At present there is no waiting list for this permit area, and it is possible to apply for a second parking permit. (source: Municipality of Amsterdam, January 2026).
HOMEOWNERS’ ASSOCIATION (VvE):
The homeowners’ association, “Vereniging van Eigenaars Minervaplein 1-7 te Amsterdam,” is an active and financially sound association, managed by a professional administrator, Delair Vastgoedbeheer. The current service charges amount to EUR 334 per month.
PARTICULARS:
- Living area approx. 131 m² | NEN 2580 measurement report available;
- located in the popular Apollobuurt, on Minervaplein;
- situated on the fifth and sixth (top) floors of a characteristic listed monumental building;
- spacious apartment with various layout options;
- terrace on the sixth floor (west-facing);
- large storage room in the basement (approx. 28 m²);
- leasehold paid off through 2052, thereafter switched to perpetual leasehold on favourable terms;
- professionally managed and healthy homeowners’ association;
- delivery/transfer in consultation / can be soon;
- subject to seller’s approval.
For more information about this property and/or to schedule a viewing, please contact our office. Our team will be happy to assist you.
This property is offered in accordance with Section 7:17(6) of the Dutch Civil Code. The stated features and/or information have been compiled with due care. However, no liability is accepted on our part for any incompleteness, inaccuracies or otherwise, or the consequences thereof. All stated dimensions and surface areas are indicative only. The stated features are for information purposes only. An age clause, “seller has not occupied the property” clause, and NEN 2580 clause apply to this property.
Spacious “top-floor” apartment of approx. 131 m² located on the elegant and highly sought-after Minervaplein in Amsterdam South’s Apollobuurt. The apartment is situated on the fifth and sixth (top) floors of a characteristic listed monumental building, naturally equipped with an elevator. Due to the generous and well-organised layout, several internal layout changes are possible.
On the lower level of the building, the apartment includes an exceptionally large private storage room of approx. 28 (!) m². In addition, the current owners have switched to perpetual leasehold under favourable terms (currently paid off through 2052). In short: a spacious apartment with various possibilities in a stately monumental building in a prime location!
SURROUNDINGS:
Minervaplein is located in the heart of the beloved Apollobuurt, an area known for its wide avenues, green squares and stylish architecture. On and around the square you will find high-quality amenities such as boutiques, delicatessens and excellent restaurants along Beethovenstraat and Cornelis Schuytstraat. Sports clubs, schools and medical practices are close by, as are several parks including Vondelpark, Beatrixpark and the Amsterdamse Bos. The neighbourhood offers a calm, refined living environment with everyday conveniences within walking distance.
In terms of accessibility, Minervaplein 5 is ideally situated. Station Zuid and the Zuidas business district are only a few minutes away by bike, with direct connections to Schiphol Airport, Rotterdam and other cities. Trams, buses and the North/South metro line provide excellent public transport links, while by car the A10 ring road can be reached within minutes. This location truly combines the best of both worlds: peaceful, green living with the amenities, recreation and vibrancy of Amsterdam close at hand.
LAYOUT:
Via the stately and spacious main entrance of the building, you reach the apartment entrance on the fifth floor by elevator. The wide central hallway provides access to nearly all rooms and continues through double doors at the end into the living room.
The bathroom and primary bedroom are directly connected and both are generously sized. A simple adjustment would allow access to the bathroom from the hallway. In addition to ample space for wardrobes and a large bed, the bedroom is also equipped with a connection for air conditioning.
The living room is located at the end of the hallway and adjoins the kitchen, which can be accessed both from the hall and through double doors from the living room. This kitchen could also serve as a second bedroom if the kitchen is relocated to the living room—there is more than enough space to do so. The living room has windows on both sides, an internal staircase to the sixth-floor space, and is fitted with an air-conditioning system.
On the sixth floor there is a pleasant additional room, ideal for use as a home office, for example. This room also provides access to the sunny west-facing terrace.
Also on the main living level you will find a separate toilet and a convenient internal storage room. In the building’s basement level (accessible by elevator), the apartment has an exceptionally large private storage unit of no less than 28 m².
LEASEHOLD (OWNERSHIP) SITUATION:
This apartment is situated on municipal leasehold land. The current lease period runs until 15-01-2052 and has been paid off. After this period, the owners have switched to perpetual leasehold under favourable terms.
PARKING:
Your permit area is Zuid 2.2. With a parking permit for Zuid 2.2 you may park in Zuid-1, Zuid-2 and Zuid-8. At present there is no waiting list for this permit area, and it is possible to apply for a second parking permit. (source: Municipality of Amsterdam, January 2026).
HOMEOWNERS’ ASSOCIATION (VvE):
The homeowners’ association, “Vereniging van Eigenaars Minervaplein 1-7 te Amsterdam,” is an active and financially sound association, managed by a professional administrator, Delair Vastgoedbeheer. The current service charges amount to EUR 334 per month.
PARTICULARS:
- Living area approx. 131 m² | NEN 2580 measurement report available;
- located in the popular Apollobuurt, on Minervaplein;
- situated on the fifth and sixth (top) floors of a characteristic listed monumental building;
- spacious apartment with various layout options;
- terrace on the sixth floor (west-facing);
- large storage room in the basement (approx. 28 m²);
- leasehold paid off through 2052, thereafter switched to perpetual leasehold on favourable terms;
- professionally managed and healthy homeowners’ association;
- delivery/transfer in consultation / can be soon;
- subject to seller’s approval.
For more information about this property and/or to schedule a viewing, please contact our office. Our team will be happy to assist you.
This property is offered in accordance with Section 7:17(6) of the Dutch Civil Code. The stated features and/or information have been compiled with due care. However, no liability is accepted on our part for any incompleteness, inaccuracies or otherwise, or the consequences thereof. All stated dimensions and surface areas are indicative only. The stated features are for information purposes only. An age clause, “seller has not occupied the property” clause, and NEN 2580 clause apply to this property.